
根据我院医疗工作需要,拟对静配用药配置中心智能化设备及配套设施等设备面向社会进行公开咨询,现将具体事宜公示如下:
一、咨询内容:
品目 | 咨询项目 | 要求 | 数量 |
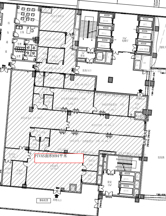
1 | 静配用药配置中心智能化设备及配套设施 | 一、设备备份 智能贴签机1台 智能分拣机1台 生物安全柜(双人)5台 水平层流台5台 多工位智能配药机器人2套 智能洗筐机1台 智能调配机1台 静脉用药调配中心管理软件1套,手持PDA 6台 二、快装部分 1.电气系统设施设备 2.弱电系统设施设备 3.给排水安装设施设备 4.结构维护设施设备 5.暖通系统设施设备安装 三、静脉用药调配中心物品配备:如推车、送药车、置物架、转椅、震荡仪等 注:静配中心总面积694平米,项目范围内的二次设计、安装工艺、设备及材料的选择要具有先进性,满足现代化医院的使用要求。全部技术指标,包括设备、材料、包装、运输、安装、调试、维修等各项目技术参数,必须符号国家现行相关规范的要求。各洁净控制区如一更、二更、调配操作间等洁净功能房技术指标要符合国家现行相关规范的要求。 四、咨询文件中提供项目设计方案 公告附件5含:静配中心平面图 | 1项 |
2 | 气动物流站点及安装 | 1、新增站点数量:5个,站点具体位置可来医院现场勘察。 2、新增站点能跟现有气动物流系统完全匹配,完成血液标本、药品等物品的传输工作,保障每日24小时连续使用,365天不间断传输作业。 3、嵌入式工作站,传输瓶内置收发,紧凑美观,能配合装修施工,保障整体效果,有LED显示器,将显示目的站地址和系统状态,可提供操作信息、操作提示等。 4、传输管道材质:合金钢管,150mm≤外径≤160mm,1.5mm≤壁厚≤2mm。 5、每个工作站标准配备传输瓶2个。 | 1项 |
3 | 洁净系统维保 | 时间两年, 维保方式:全保,包含所有人工及配件耗材,至少有两个驻点工人员,保证效应效率。 维保内容:包括但不限于净化设施设备(风机、空调、除湿系统、过滤器等)、强弱电、监控、电话、网络布线、电动门及辅助用房各种门、控制系统、整个区域装修装饰及水、电、气、网络、吊塔等配套设施设备等; 咨询会文件中制定出详细的维保维护方案,制定常见配件耗材表(包含品牌、数量、价格); | 2年 |
二、要求须知:
1、品目一、二必须由厂家(产品制造商)、区域总代理或有针对本项目的授权函的代理商报名,按要求填写附件2发送至报名邮箱。
2、品目三必须按要求填写附件4发送至报名邮箱。
3、推荐产品(服务)的规格型号等信息与报名一致,需使用PPT进行介绍,介绍时间10分钟,品目一、二需有该产品制造商(厂家)代表在场。未按要求参加将取消参会资格。
3、参加厂商需证照齐全,经营范围必须包括所咨询设备(服务)。并具有独立承担民事责任及履行合同所必备技术能力,参加政府采购活动前三年内,在经营活动中没有重大违法记录。
4、推荐产品属于医疗器械的必须获得医疗器械注册证或一类设备备案凭证,价格不能高于江西省的限价,配套耗材必须同时提供耗材价格及证明材料,独有的技术参数必须红线标记出来。咨询文件中提供医疗器械注册证附件一栏(产品技术要求)相应的产品信息
5、品目一、品目二咨询文件按附件1格式制作并胶装成册,一式三份(一正二副),不接受未经胶装的资料。
6、品目三咨询文件按附件3格式制作并胶装成册,一式三份(一正二副),不接受未经胶装的资料。
7、在咨询文件中设备核心参数或独家参数请用*标注,并在咨询会上着重介绍说明。
8、参照采购需求调查要求,如报名家数不足三家,在报名截止后会电话通知各报名单位,取消本品目咨询会。
8、报名后需按时参加咨询会,如会议时间需进行调整,将会电话通知各个报名单位调整时间。
9、请将所投产品技术参数文件与报名文件一并发送至邮箱
三、报名时间与方式
报名时间:2025年2月27日-2025年3月5日下午17:00时截止。
报名方式:按附件填写报名表发至邮箱gzfysb@163.com。
对本次咨询公告提出询问,请按以下方式联系:
联系人:黄老师 电话:0797-5569613。
四、咨询地点与时间
地点:赣州市章贡区南康路25号赣州市妇幼保健院新院行政保健楼8楼2号会议室。
时间:2025年3月6日上午9:00开始(请提前10分钟到场签到,9:00未签到视作放弃参会资格)。
设备科
2025年2月27日